空間利用最大化
发布时间:2025-10-11 10:44
利用角落空间,最大化利用空间 #生活技巧# #学习技巧# #学习环境优化#
空間利用最大化
02-09发表
山东 青岛
200
楼主悬赏200积分
功能需求: 厨房改造 增加储物空间 卫浴间改造
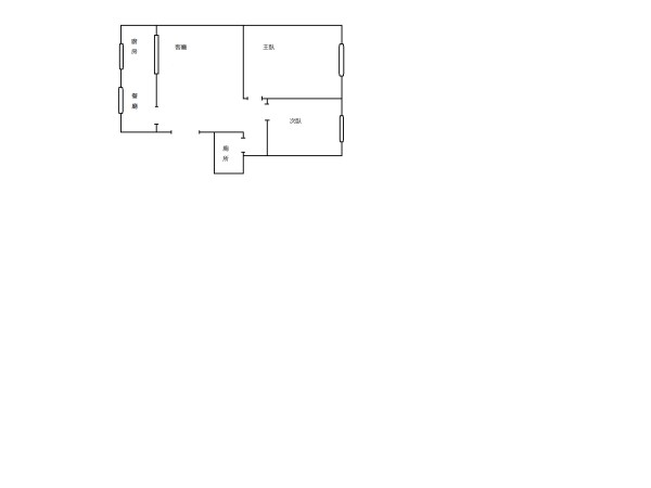
户型图:

青岛_泰州路16号_2016-01-16-1640
建筑面积:83.0㎡
所在城市:青岛
实用面积:
78m
常住人员:
三口之家
你最想改造房子哪几处地方:
主要改造廚房、客廳、衛生間,區分廚房和餐廳,客廳沒有窗戶,這是重點改造區域,輔助改造增加陽台晾衣空間
ps: 酷家樂導出的戶型圖有小幅出入,正規戶型圖請參考本人上傳的圖片

酷大师向您推荐
升级为优质设计师1对1服务
资深室内设计师在线提供1对1户型设计服务,酷家乐认证品质有保障。全程为您解答空间布局、施工工艺、建材采购、软装搭配等问题。
去找设计师
网址:空間利用最大化 https://www.yuejiaxmz.com/news/view/1358281
相关内容
小坪數房間收納指南|完全解析如何利用空間,維護居家生活品質為不同空間“量體裁衣”提高資源利用率
傢俱再回收利用:打造環保家居空間的創意指南
如何整理行李最聰明?這樣打包讓行李空間更大!
【家居整理攻略】為你 增加空間 的10大技巧
小廁所大變身!5 大設計技巧讓衛浴空間放大 1.5 倍
5 大高效健身技巧,讓你用最短時間,漲最多肌肉
【教學影片】最快速的摺衣服方法、最省空間的折衣技巧!
【2024最新】5款冰箱收納盒推薦,冰箱整理空間翻倍!
如何打造好風水的居家空間?房間風水完整指南

