设计师为业主创建了一个温和、舒适的室内空间,用白色和木色搭配出惬意休闲的轻松氛围,给人以简约温馨的感觉,让生活显得更加具有品质和温度。 楼盘地址:银太家园 户型面积:72㎡ 案例风格:日系风格 案例设计:叶相甫

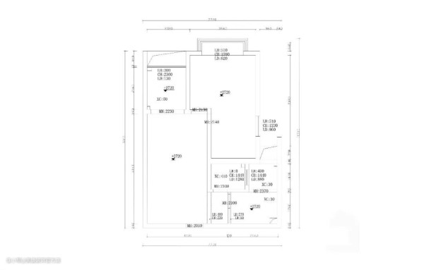
▲原始户型图 1.整体原结构空间划分不明显 2.希望一居室改二居室,有主卧有客卧 3.厨房利用率不高。 4.业主希望有个独立休闲区,要是能做抬高就更好了 5.还需要有独立的生活阳台

▲户型改造 1.主卧拆分成两个房间,一间为原来的主卧一间为客卧,满足客人来家里的住房需求。 2.将厨房和厨房内的小空间合理划分,改造后空间方正,有独立的生活阳台使用面积扩大。 3.客厅的休闲阳台扩大,既满足多样生活需求又让客厅看起来更大气周正,同时拥有更好的采光性和通风性。 4.在主卧和客卧的区域都打造了独有的衣柜,用于收纳 5.当然餐桌旁也定制了通顶的收纳柜

72平方米的家,餐厅、客厅连接为一体,让小家也有“呼吸”的空间。

客厅背景墙面使用柔和的木材,相同的木头质感带来光影和触觉的微妙变化,和整体框架构成体块关系,让人的感官更为敏感、丰富。

餐厅延续了客厅的视觉体验,但又留有自身独特的空间情态。

从柜子到地板,从茶几到餐桌,形成了错落有致的同色调视觉效果

厨房面积扩大,和客厅墙面拉平延伸出空间,内部更加宽敞自如。 瓷砖采用小白砖,营造出温馨日式的感觉,同时在视觉上也更加清爽。

转角连接到卧室私密区域,形成亲密的彼此联系,明暗有致的光影平抚着居住者内心,抹去心中的纷扰而获得沉静安宁。

玻璃柜摆放着主人的各种心爱之物,低调展现了空间的精致感

抬高的地台,将阳光引入室内。 还可以用作业主宠物狗的休息区,将点滴快乐都化作最简单的符号融入到生活里。

休闲区利用白色纱窗将光线引进来 错落的光线调节了原本稍显闭塞的空间,奶咖的色彩也为空间提亮。

卧室整体的调性与客厅相契合,屋主选择了麻布质感的床,营造日系氛围。






美迪装饰官方店关注
