一居复古风装修案例
复古工业风家居设计案例解析 #生活技巧# #家居技巧# #家居设计灵感#
50㎡复古风装修丨换个思路宅家!

 
江超杰 
 

户型:一居 风格:复古风 面积:50㎡ 装修方式:全包 装修工期:60天 位置:绵世溪地湾 造价:5万元
方案说明
本次案例是一套50㎡的老房子,是女儿给妈妈装修的房子。妈妈的身体不太好,房间里一年四季需要都是恒温的状态,设计师设计的时候考虑了地暖、新风、空调等智能设备,保证家里的温度一直是恒温的状态。此案采用无主灯设计,整体材料选择和色彩搭配满满的文艺复古风。
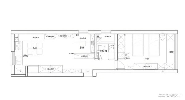
户型图
 
 
1、全屋做了中央空调、新风系统和地暖,房间里一年四季是恒温状态。 2、屋里做了无主灯设计,既保留主灯的功能。又增加来了空间的层次感和动态性。 3、增加了衣柜收纳以及书房的功能,空间感不压抑。 4、厨房面积不大,设计师设计成开放式厨房。 5、卫生间做了干湿分离,满足了业主对生活品质的追求。
玄关
 
玄关决定了对这个家的第一印象,进门处的一组矮鞋柜不仅仅具备鞋子的收纳功能,同时也避免了空间的凌乱感。下方鞋柜放了常穿的鞋子和拖鞋,也方便拿放。矮柜底部抬高了20公分,适合放置扫地机器人。
 
门口正对面做了一个换鞋凳,高度45公分。这样坐着换鞋会更舒服。
客厅
 
整屋的风格是复古风,胡桃木色的整体橱柜。每一帧都像电影里走出来的场景~氛围感满满~
 
客厅没有做电视墙,靠墙做了一正面橱柜。增加收纳的同时又能把很多东西隐藏起来。
 
整屋竖铺长条型的木地板,没有做过门石。省钱还方便打扫~
餐厅
 
不仅加大了厨房台面的空间,也拓宽了整个客厅的视觉效果。
 
奶油白的橱柜+原木色的台面,厨房显得干净又高级。打造成精致的料理空间~
厨房
 
厨房空间不大,设计成开放式厨房。拆除原厨房的门,也拆除了一部分的墙体,让厨房和餐厅的空间连起来;
卧室
 
卧室一定要放双人床嘛?答案可是不一定的哦~因为业主平时是一个人住,女儿偶尔过来居住,双人床的设计两人同时居住互不影响~
 
 
卧室靠墙的飘窗改造成休息场所,在这聊聊天、喝喝下午茶都是很不错的选择。
 
卫生间
 
干净整洁的黑白风卫生间,布局是干湿分离设计,简单又干净。白色的悬挂式浴室柜,空间利用率高。底部空间打扫卫生很方便,还能置物。
 
发布于2024年03月21日
@声明:上述内容由装企自行上传
网址:一居复古风装修案例 https://www.yuejiaxmz.com/news/view/1400966
相关内容
二居复古风装修案例复古装潢实例,复古装潢案例,复古装潢风格
【复古风格装修效果图】复古风格装修设计案例
欧式复古风格装修,欧式复古家装风格案例
复古风装修案例,十分高级
装修案例复古工业风格室内装修效果图
房子复古装修风格(复古格调装修案例)
美式复古风装修分析及案例
复古装修风格特点有哪些?88平复古风两居室装修实例
三居复古风装修案例

