120㎡温馨现代家居空间,半是诗意,半是烟火!
街角的早点摊,人间烟火气,是平凡日常的诗意瞬间。 #生活乐趣# #生活日常# #日常生活摄影# #晨起生活瞬间#
给我们打上星标
就不会错过任何装修案例啦

把生活过成诗,一方天地
Home Town Poetry Life
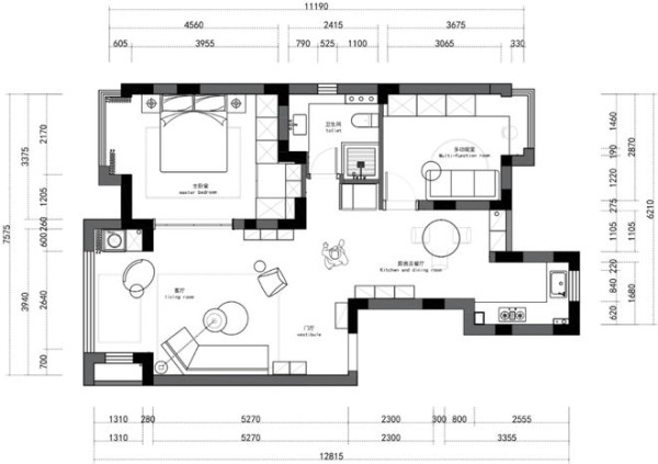
房屋信息
房屋面积|120平米
房屋户型|平层
装修风格|现代简约风

生活,应该是是诗意的,而生活中的家,应该是舒适而又惬意的。结束奔波忙碌的工作,回归自我的港湾,释放疲惫,远离喧嚣,读一本书,听几首歌,约三五好友,谈天说地,生活如此妙哉!
本案的业主爱好读书,也喜欢收集一些可可爱爱的成品收纳等物件,身处在这片小天地中,每到一处就会发现有趣的宝藏,让人心动不已,跟着一起来探索寻宝吧!
NO.1|客厅

客厅区域衔接阳台一整个打通,给室内带来充足的采光,非常敞亮,衔接处做了弧形处理,会更加柔和。


橙色皮革沙发与造型奇特的书架和精致的挂画相呼应,并与白色墙面形成有趣的对比,给客厅空间一种清新俏皮的自然氛围。
NO.2|餐厅

餐厅的空间虽小但很温暖,简单的布置,木质餐桌在柔和的灯光下,洋溢着满室的温馨情怀,营造舒心就餐氛围。

NO.3|厨房

厨房生活,不只是柴米油盐酱醋茶的枯燥琐碎,而是沟通、互动且充满创意的乐园,与餐厅空间连接,做饭畅聊两不误。
整个厨房都采用了白色的设计,显得非常的清爽干净简洁,辅以原木色地板,不显单调。

NO.4|卧室

随动线进入卧室空间,主卧延续客厅原木与石材的运用,大大的落地窗,与大自然亲密接触感受魅力,阳光照射进来仿佛整个居室被包裹着,营造出温馨柔和的睡眠环境,搭配清新的绿植净化空间。

NO.5|影音室

拉上遮光窗帘,打开投影仪,在家就能轻松享受观影的乐趣。
壁炉的装饰品,柔软的懒人沙发坐垫,在泛黄的灯光烘托下,更有氛围感,极大的提高了家居生活幸福感。

NO.6|卫生间

白色大理石自然简约的质感,让整个卫生间的空间都显得更加优雅高档、端庄。
大大的浴室镜,靠窗大浴缸,满满幸福感。


居家,是一种美学的追求,亦是一种生活状态,更是一种艺术!
想要获取同小区的更多研究情报?
想要实时获取设计师灵感方案?
想要与设计师一对一沟通?
线上家装顾问为您服务
在线报价 | 户型规划 | 3D实景案例 | 参观工地
后台留言【姓名+联系方式+楼盘面积】
或添加咨询微信
装饰美好空间
筑就幸福生活
或者拨打400-066-2713
了解更多家装资讯
△点击关注 查看更多精选案例、装修知识△
网址:120㎡温馨现代家居空间,半是诗意,半是烟火! https://www.yuejiaxmz.com/news/view/1418414
相关内容
生活一半烟火一半清欢:寻找生活中的诗意与温暖作品时代 | 人间烟火气,是有温度而诗意的生活
2024届名校高考作文试题模拟导写:生活,一半烟火,一半清欢
生活,一半烟火,一半清欢:在繁华与宁静中找寻平衡的艺术
一个家庭最好的状态:一半烟火气,一半书香气
生活,一半烟火,一半清欢
一半烟火,一半清欢——生活的艺术
云水逸 | 生活,一半烟火,一半清欢
环市东现楼!一半繁华,一半人间烟火,演绎高阶品质生活
放松、宁静是快乐幸福的秘诀,乡村生活也是一半烟火一半清欢#享受这悠闲时光#把生活过成诗

