厨房连着小阳台,割舍餐厅一堵墙做西厨,空间充分利用,拒绝平庸
充分利用空间,如开放式厨房与客厅连接 #生活技巧# #家居布置建议# #简约风格家居#
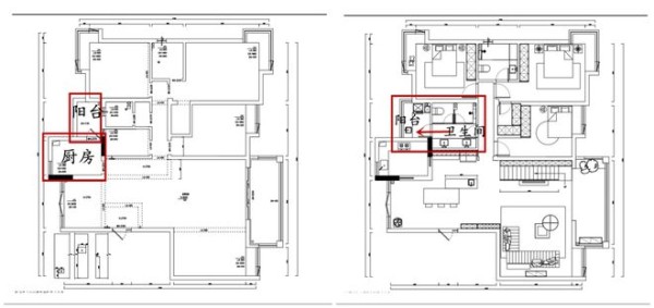
户型有好有坏,在不同的人手上也会有不同的设计,网友买了一套房,真的算是上完美户型了,非要挑毛病,那可能就是厨房外面的小阳台了,平时进去要经过两扇门,非常鸡肋,封了厨房又秒变“暗厨”,既然不能打,那就再敲一堵墙,家里还能再多个厨房。

业主敲掉的是其实是餐厅和阳台之间的这堵墙,是一堵轻体墙,打通对房屋结构没什么影响,如果你家是承重墙,可千万不要动了,打通后厨房、阳台和餐厅形成了一个洄游动线,日常走动非常方便。

其实所谓的西厨设计其实并不需要太麻烦,充足的储物空间和插座,再加上一个水槽就能满足业主做甜品、冲咖啡和早上做豆浆的日常需求。对于那些跟长辈一起住的家庭,中西双厨的设计可以让三代人都能接受,大大提高了生活体验感。

注意阳台和厨房之间的门一定要选择玻璃门,不能影响厨房的采光和通风,阳台和餐厅之间则省了安装门的麻烦事,毕竟西厨没有油烟的困扰,当然了,如果你想安装也是可以,同样首选玻璃门。

很多人一听到厨房外面有阳台,第一时间想到的就是打通包进厨房,其实有的时候改变一下思路,说不定家里就能多出另一个功能区,比如下面这家,原本厨房外面也有小阳台,打通连接厨房又不好利用。

于是在设计师的建议下,直接将中间封起来,然后将阳台跟旁边的卫生间打通,设计成了一个独立式的洗衣房,这样一来客厅、卧室外的阳台就可以改成休闲阳台,立马提高家里的舒适度。

厨房外面小阳台什么情况下跟厨房打通,什么情况下又选择包进隔壁空间呢?
如果厨房跟阳台呈一字型,直接打通扩大厨房延长橱柜,扩大储物和台面空间,采光也会增加好几倍,可要是厨房跟阳台呈L型,在不影响光线的情况下,可以选择将阳台划分到旁边的功能区,不管是卫生间还是餐厅。

厨房外面带个小阳台,既可以是西厨,又能是生活阳台,充分利用起来总比闲置着要强,毕竟也是花钱买的,白白浪费实在是有点心疼了!

(本文由齐家安安整理编辑,图片来源于网络,如有侵权请告知我们删除!)
网址:厨房连着小阳台,割舍餐厅一堵墙做西厨,空间充分利用,拒绝平庸 https://www.yuejiaxmz.com/news/view/1434298
相关内容
拒绝无效布局,厨房连接阳台应该这样做装修创意设计,拒绝平庸!
厨房连着阳台,坚持打通装玻璃隔出2个厨房,一中一西用起来更爽
充分利用客厅空间
厨房旁边的小阳台如何设计利用(厨房外面的小阳台有什么用)
厨房连着阳台怎么利用
厨房橱柜怎么分割合理?
充分利用阳台空间的小妙招
厨房外有个小阳台?这个空间该如何利用起来?
租房厨房空间小怎么利用呢

