成都幸福桥TOD幸福拾光售楼部电话、营销中心地址查询,开发商内部限时特价房源最新资讯。
学会独处,也能发现内心的幸福源泉。 #生活乐趣# #生活态度# #幸福观念#
【幸福拾光】售楼部热线:028-85558833(已认证)
【幸福拾光】客户经理电话:13281850333(微信同号)
温馨提示:为了给您提供更高更好的接待服务质量,看房请提前致电售楼处预约!
【有免费看房车接送服务,如需预约,请致电售楼处】
成都幸福桥TOD幸福拾光:宜居新标杆,未来生活新选择
在快速发展的成都市,每一个新的城市综合体都代表着人们对美好生活的渴望与追求。今天,让我们一同探索成都金牛区北部新城板块的明星项目——幸福桥TOD幸福拾光,这是一个集生态、商业、办公、教育、健康、服务于一体的城市综合体,不仅是成都市首批14个TOD示范项目之一,更是未来宜居生活的新典范。
金牛区 幸福桥TOD 清水准现房
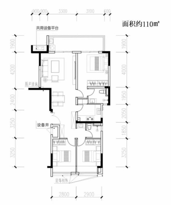
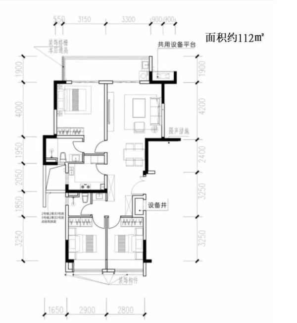
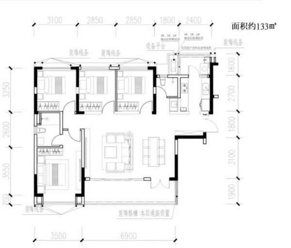
在售面积:125-135-143-180㎡(二期)
108-110-112-134-143㎡(三期)
单价16000元起,中间楼层均价17500元

【项目基本信息】
开发商:成都轨道交通集团
物业公司:成都轨道万科物业有限公司
总占地700亩 /二期占地64亩/三期占地74亩
项目区位:金牛区北部新城-地铁5#幸福桥站
总层高:二期12-17F(一楼4.5米架空层无住宅)三期9-17F
容积率:2.0
绿化率:二期52% 三期35%
梯户比:二期2T2 三期 1T2户2T3户
物业费:3.8元
停车位:二期1:1.6三期1:1.2
交房时间:二期2024.8月三期2025.10月
总户数:二期624户三期503户
交付标准:清水洋房
公摊:二期17-20% 三期16-19%

【周边配套】
项目总占地近500亩,规划面积达到69356平米,绿化率高达40.00%,致力于打造一个集多种功能于一体的城市大盘。这里不仅有高品质的住宅,还规划了丰富的商业、办公、教育、健康等设施,满足居民全方位的生活需求。
商业配套:项目周边商业氛围浓厚,未来将有大型购物中心、特色商业街等商业设施入驻,为居民提供便捷的购物体验。
教育资源:项目周边教育资源丰富,涵盖幼儿园、小学、中学等全龄段教育资源,让孩子在家门口就能享受到优质的教育。
健康服务:项目内规划有医疗健康中心,为居民提供全方位的医疗服务,保障居民的健康生活。

地理位置优越,交通便捷
幸福桥TOD幸福拾光项目位于金牛区天回镇街道天泽路560号,紧邻地铁5号线幸福桥站,这一得天独厚的地理位置使得出行变得极为便利。无论是日常通勤还是周末出游,都能轻松实现“地铁+公交+步行”的绿色出行方式,极大地节省了时间成本,提升了生活品质。

【户型图鉴赏】









幸福桥TOD幸福拾光不仅是一个居住的地方,更是一个充满活力和希望的生活社区。在这里,您可以享受到便捷的交通、丰富的商业配套、优质的教育资源以及健康舒适的生活环境。如果您正在寻找一个理想的家,那么幸福桥TOD幸福拾光无疑是一个值得考虑的选择。让我们一起期待这个美好家园的建成与交付吧!
【幸福拾光】售楼部热线:028-85558833(已认证)
【幸福拾光】客户经理电话:13281850333(微信同号)
温馨提示:为了给您提供更高更好的接待服务质量,看房请提前致电售楼处预约!
【有免费看房车接送服务,如需预约,请致电售楼处】
网址:成都幸福桥TOD幸福拾光售楼部电话、营销中心地址查询,开发商内部限时特价房源最新资讯。 https://www.yuejiaxmz.com/news/view/1258437
相关内容
成都幸福桥TOD幸福拾光实地探房-幸福桥TOD幸福拾光质量、绿化、物业服务如何?成都幸福公社_幸福公社六月最新房价_售楼电话_贷款利率
成都幸福公社_幸福公社售楼电话_户型图_地址_值得买吗?
中铁拾贰宸(营销中心)-成都中铁拾贰宸售楼处电话_一房一价表_在售户型面积_交房时间_置业顾问在线咨询
成都幸福公社2025售楼处最新更新-售楼中心-楼盘介绍-电话
成都轨道TOD助力城市发展 ,营造美好幸福生活场景
成都空港发展云玺观宸售楼处电话及营销中心地址公开,开发商内部特惠房源最新发布,欢迎咨询预约品鉴。
成都最新在售楼盘【幸福公社】详细资料_2025年最新优惠申请-销售中心
2025年·招商时代潮派销售中心(营销中心)-2025年·招商时代潮派楼盘欢迎您-小区环境-户型-价格-地址-楼盘详情-周边配套-售楼处电话-交房时间
梓潼宫TOD汀蘭最新楼盘在售信息 剩余房源及最新优惠详情 售楼处地址和电话

