现代简约家庭住宅民宿
作者anjing2018年10月27日2018年10月27日
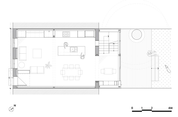
一个百年的家庭作为民宿欢迎另一个家庭的到来,并希望他们在新的空间呼吸新的空气、感受新的生活,并与周围环境建立新的对话。为了尊重家庭的原始特征,保留了植根于后院的大杨树。


院子和生活区之间的中间区域为家庭提供了新的空间和光线,而不会影响亲密关系。通过流体转换,1885年的现代添加和家居设计之间形成了鲜明的对比,另外还增加了一个轻质的楼梯,作为室内和室外空间之间的过滤器。


▽ 这个楼梯连接空间,允许家庭原始室内设计的完整重组,同时代表树的垂直度,从而加强了家庭与其根源之间的关系。位于翻新空间的新木窗附近的两间日光浴室在院子附近提供了一个舒适的阅读空间,为家庭提供了全年享受周围环境的机会。



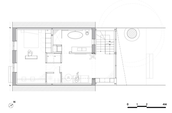
夹层是主卧室的所在地,可直接通往屋顶露台,夹层悬挂在家庭和院子的两边,漂浮在相邻的家园,最小化对原始结构的修改。

分析图:


Photos©️Adrien Williams

