她家70㎡酒店式公寓,二层楼奇葩户型,暗厨暗卫,卧室布局真聪明
卧室照明要兼顾局部和整体空间,避免过亮或过暗 #生活知识# #家居生活# #卧室布置建议# #卧室照明方案#
好看的装修案例有很多,但你们有没有看过“酒店式公寓”?这类房子比起普通的商品房来说,在户型上有着很多复杂的缺陷,今天小能手要给大家介绍的装修案例实景图,正是这样的来头,一个一居室70㎡的两层楼公寓。
在前期设计的时候,经过多次的现场勘测,终于实现了业主对婚房的设计需求,那么一起来看看这70㎡的温馨小家长什么样吧!
玄关

玄关设计得非常简单,一个成品鞋柜+挂帽的换鞋凳。门口的电表箱用装饰品遮盖起来,再搭配些小物件的点缀,形成一体。
客厅

客厅小而温馨,装饰品有些多但并不显得杂乱,更有生活的氛围感,小茶几搭配小沙发,一切都小而精致,蓝色与吊顶的蓝色相呼应,有种统一感。
客厅和餐厅之间,巧妙地用大冰箱来划分两个区域。

沙发的另一个视角是电视机,仍然延续玄关的风格,简单明了,用一个矮脚柜当作电视收纳柜,背景就是普通的大白墙,可以看出,进门即见厅的设计很宽敞。
左边的楼梯整体采用原木风的设计,给人很温馨的感觉。楼梯下方的空间不浪费,打空做成柜子用来收纳,再好不过。
卧室

上楼第一眼看到的就是一张很大的双人床,户主是一对夫妻,非常会享受生活,这样布局真的好聪明!直接在床对面安装了100寸的投影仪,在家也能看电影。
第二层的顶部结构与一楼设计一致,同样用天蓝色的线条打一圈,还与床头的壁纸相呼应。

为了不显得单调,床头延伸至床头柜都铺满了水蓝色的壁纸,给人一种丰富的层次感,在双人床的右手边设置了一个小的储物柜,这是用来干什么的呢?

原来,里面是一个小小的生活功能区,内部有直饮水的过滤器,想喝水的话就不用跑到楼下去,下面铺了一张白色的地毯,平时就可以坐在地上看看窗外的风景,好惬意。
功能区
化妆间

因为女主人非常喜欢化妆,于是直接把手盆外移,安装一个超级大的镜柜来作为收纳
衣帽间

原本是乱糟糟的空间被整改为衣帽间,经过对衣柜的合理规划,变得整齐许多,真的太实用啦!
餐厅

由于是小户型,面积不够大,餐厅可以设计成卡座的形式,能节省很多的空间,刚好飘窗和卡座可以练成一体,吊柜的安装和卡座的设计,让收纳能力又上升一个等级。
临窗的餐厅,采光好,让人更加有食欲。
厨房

没有窗户的暗厨,机智地采用了白色的面包砖来增加亮度,另一面墙用明亮的黄色来强调厨房的重心,厨房格局有些奇葩,但功能是非常的齐全。
卫生间

卫生间和厨房一样,同样的没有窗户,也是用同样的手法,采用明亮颜色来提升整个空间的质感。而且对于干区卫生间,乳胶漆+瓷砖的搭配,完全能满足需求,还能节省一部分的瓷砖预算。
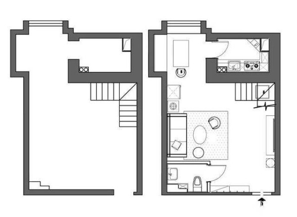
户型图

酒店式的公寓在有些功能区上面积非常小,并不能满足客户的需求,只能是经过多方面的考虑来进行合理的改造,才最终呈现给我们上面那么完美的样子。
(图片来源:网络,侵删)
网址:她家70㎡酒店式公寓,二层楼奇葩户型,暗厨暗卫,卧室布局真聪明 https://www.yuejiaxmz.com/news/view/1398778
相关内容
【酒店式公寓】什么是酒店式公寓 酒店式公寓的种类和特点酒店式公寓营销方案计划666.doc
东海国际公寓动态更新-东海国际公寓户型/价格/学区/楼盘动态
【空间功能布局】家居空间分区布局设计 动静、干湿明暗互不影响
23㎡小公寓奇迹!卫生间上方竟藏卧室,太酷了!
奇葩89㎡小户型改造,卧室跟客厅互换,品质提升不止一个档次!
第一次见香港25㎡的蜗居,一室一厅,电视柜很实用,真难为设计师了!
酒店式公寓
一文秒懂老年公寓功能布局与户型设计
暗厨房与敞开式厨房燃气设施布置探讨

