【诗意的栖居】温暖处为家,安放青春与爱
把平凡日子过成诗:诗意地栖居在尘世 #生活乐趣# #生活分享# #生活哲学感悟# #生活乐趣实践#
拖延症懒癌晚期双重患者,外加时间不够用,
弃装修贴;
装修完一年搬家半年后,终于来发毕业照了!
这,是一个毕业照及花园生活记录贴
【持续更新】。
一、【装修情况简介】
1、房屋格局:一楼(105平,三房两厅)、
前后花园(前后花园共计80多平,幸运附加
一小房顶)
2、设计团队:一筑(释兰家居)+喳喳(我
自己)+张老师(我先生)
3、装修队伍:身边家居达人御用装修队,不
混房网4、风格:我自己也说不上来,只能称之
为“混搭”
A、基调:明亮、大方、简洁
B、家庭成员要求元素:
自己:诗意的栖居、自然的质朴、园
艺的浪漫,时光的静好……(要求多)
张老师:艺术范儿、手工范儿、时光
范儿、西部范儿、……(要求更多)
卡卡西:吃、睡、打滚儿、上串下跳
植物:适合生长的环境
二、【写在之前】
1、毕业照是搬家不久后张罗着草草拍摄,一切
并未按照家庭日常生活状态归置和陈设;
2、目前家居陈设和前后花园已不是照片中的状
态,后续会在本帖陆续更新;
3、没有整理清单;
4、因为户型改动非常大,外加前后花园基础建
设较多,装修费用于他人可能并无太大参考意义。
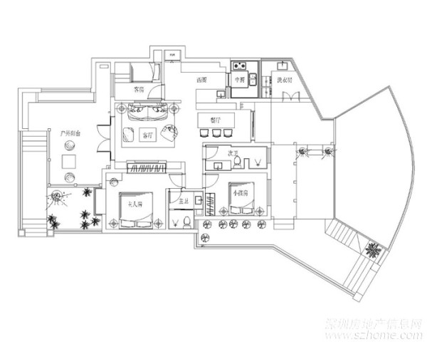
三、【无法免俗的毕业照第一弹—前后对比户
型图】
1、原始户型图

2、大致接近的修改后的图(边装边改的后果
就是没有一张精确的图)

四、【进入正题—毕业照概览】
先大致发几张【开放区】入户、客餐厅、花
园的图,后面逐步发一些细节图+注解
入户

客厅两个视角


餐厨两个视角



后院一角

昨晚下雨,晨起小院的绿让我不想去上班,那个
被很多人嫌弃的青蛙,在我家找到了自己的位
置!

我家大门,小院入口,入户茶台涤器的流水自己
DIY了一个小水景




网址:【诗意的栖居】温暖处为家,安放青春与爱 https://www.yuejiaxmz.com/news/view/1442327
相关内容
诗意栖居:生活中的美学与哲思生命的诗意栖居|以热爱之情拥抱生活,在平凡中寻找诗意
诗意栖居:心随云影栖诗境 梦伴花香入画居
《诗意的栖居》:给生活寻找几缕诗意
诗意栖居与“生活美学”的出场
生活的乐趣,300字的诗意栖居
现代简洁+诗意感性,舒适的栖居美学
建水:从“旅居”到“旅创” 找到诗意栖居方式
若派门窗:开启诗意栖居,邂逅家的无限美好
诗意栖居广医应心育桃李

