在一楼的长条形小户型,56平加一个院子,生活得好惬意
发布时间:2025-10-26 23:20
在公园长椅上读到一本好书,度过一个惬意的午后 #生活乐趣# #日常生活趣事# #每日生活新鲜事# #日常琐事趣事合集#
关注微信公众号:jiaxhx,学习更多小户型装修知识技巧齐家小菜今天分享的是一套建筑面积56平米的长条形小户型二居室案例,房子位于一楼,所以还带有一个半赠送的小院子。长条形的房子采光并不是很好,所以设计师选择了北欧风为主,以白色为底,打造了这样一个紧凑实用的小窝,让人羡慕不已。
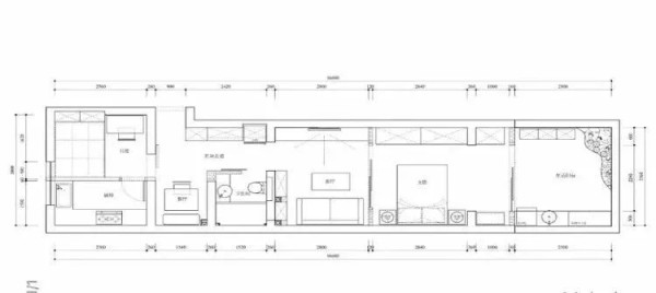
平面布置图
进门的第一个空间就是餐厅,整个空间都不大,设计师做了一面黑色与白色构成的海浪背景墙,搭配木质的餐桌椅,显得简单又时尚。
餐厅的边上是通往客厅和主卧的走廊,卫生间就在走廊里面。洗手台被放在了门外,和鞋柜结合起来,整个小空间的布局紧凑而又实用。
次卧是在入户门的另一侧,设计师做了榻榻米床组合衣柜和书桌的设计,把这个不到6平方的空间,给塞得紧紧的,但软装的搭配却非常好看,有种文艺感。(ps:现在添加微信:qijiavv, 即可根据您家户型,免费提供多套相似VR-3D效果图供作参考!)
次卧的后面就是厨房了,一个长条形的小空间,L形的橱柜布局方案非常适合小户型,墙面的挂杆、地面的小推车等,给厨房带来了更多的储物空间。
从走廊过来就是客厅空间了,设计师用文化砖做电视背景墙,搭配上沙发边的满墙书架,让客厅看起来很有文艺范。
客厅的宽度和长度都不是很长,所以塞下一个双人沙发就好了。加上小茶几和脚凳,也能多坐几个人。客厅和卧室之间用黑框玻璃作为隔断,保证光线流通。
主卧室的床头背景墙做了硬包的设计,床尾是到顶的衣柜,床的两侧塞下两个复古的床头柜,整个卧室的布局是非常紧凑的,以满足屋主使用需求为主。
卧室的外面就是一楼的小院子了,同样是用黑框玻璃作为隔断,让光线流通,搭配窗帘又能保证室内的隐私性,屋檐下方是晾晒衣服的地方。
而这个露天的小院子,就可以用来种些花花草草,再搭配上可折叠的防腐木家具,还可以在院子烧烤、野炊,这样的生活真的是非常惬意呀~(我们致力于保护作者版权,部分作品来自互联网.无法核实真实出处,如涉及侵权,请直接联系小编删除.谢谢!)温馨提示:点击右上角小圆点,查看公众号可设为星标,再也不怕错过我们的更新啦~加微信:qijiavv,或扫描下方二维码,即可根据您家户型,免费提供多套相似VR-3D效果图供作参考!!想知道自家装修多少钱?点击“小户型装修案例精选”马上就能算出来!
网址:在一楼的长条形小户型,56平加一个院子,生活得好惬意 https://www.yuejiaxmz.com/news/view/1388513
相关内容
68平北欧风小户型,一人一房一狗生活足够惬意,入户就被迷住了形容生活舒适惬意的句子
50平小户型装修,一人小蜗居,住的也太惬意了!
形容惬意生活的句子(通用410句)
DIY庭院花园,打造惬意户外生活
邻里一家亲,在这里体验惬意慢生活
56㎡小户型爆改3室一厅,三代同堂自在生活,设计堪称教科书!
小户型客厅布置,让你倍感惬意!
污水倒灌把楼上全告了,法院:楼上同户型各住户平等担责
悠闲惬意的生活的句子50条

