农村自建房的神仙生活!北京一女子晒出生活照,花两年时间,将没人要的老宅装修成梦想中的家,四合院,小平房,舒适现代,整洁实用,太厉害了吧!
.
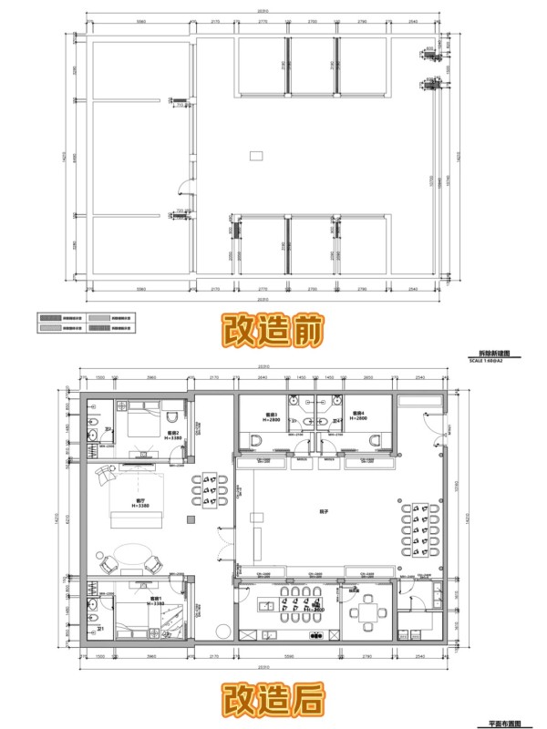
这期要分享的是屋主 @提提的装修日记 的家,位于北京郊区,一个已经10年都没人住的老宅,原本破旧局促,卧室少,厨房在外面,没有卫生间,采光也很差。屋主花费两年时间,拆旧宅,盖新房,规划好卧室和厨房的为主,重新做上下水,终于打造了这个现代实用,敞亮舒适的四合院。
.
26㎡的客厅做抬高,装上大落地窗和阳光房,家里显得敞亮又温馨,两侧是卧室,都带有独立的卫生间,两侧的厢房,一边做与客厅打通,做餐厨一体,另一侧则还没想好干啥,空着当储物间。
全屋都以实用为主,没有复杂装修,收纳充足,设施现代,实用又温馨,如今,每周末一家人从城里回去,浇花骑车摘菜,自在惬意极了。
.
这期分享就到这里结束啦,我们家与生活,和你一起探索千万真实的家,下期见啦!
(图片转载自小红书博主@提提的装修日记,如有侵权,请联系删除)
#发微头条每周赢奖金##万能生活指南#



















